
Das WOCHN DP-Freilandmontagesystem ist ein robustes PV-Montagesystem für Anlagen, das in jedem Gebiet installiert werden kann. Die Installation ist mit nur wenigen Strukturkomponenten einfach. Vormontierte Komponenten zur Zeitersparnis bei der Installation vor Ort. Starke Doppelpfahlunterstützung für einfache und schnelle maschinelle Bedienung und Installation. Es handelt sich um eine sehr starke und zuverlässige Konstruktion, die sich besser für große Projekte über 10 MWp oder den Einsatz in Bereichen mit hoher Windlast eignet. Es ist einfach und bequem zu installieren und mit den meisten gängigen PV-Modulen auf dem Markt kompatibel. Darüber hinaus bieten wir individuelle Lösungen und detaillierte Angebote inklusive aller statischen Berechnungen an. Je nach Kundenwunsch und Umgebungsbedingungen verwenden wir langlebige, hochwertige verzinkte Stahl- oder Aluminiumkonstruktionen, um eine längere Lebensdauer und hohe Korrosionsbeständigkeit zu gewährleisten.
Merkmale

Langlebig und zuverlässig
Langlebig durch feuerverzinktes Stahlmaterial oder Zink-Aluminium-Magnesium-Material, hohe Korrosionsbeständigkeit.
Die im DP-System verwendeten C-Stahlprofile sind für die Belastung durch große Windgeschwindigkeiten und Schnee ausgelegt und zertifiziert.
Doppelter Stapel zur Unterstützung von Solarpaneelen in mehr als 3 Paneelen im Hochformat und 5/6 Paneelen im Querformat in Bereichen mit großem Wind.
Entwerfen der Lasten basiert auf EN1991 und erfüllt andere internationale Standards.

Mechanisierte Installation und Zeitersparnis
Starke Pfahlunterstützung für einfache und schnelle maschinelle Bedienung und Installation.
Vormontierte Komponenten zur Zeitersparnis bei der Installation vor Ort.

Technischer OEM-Support
WOCHN bietet kundenspezifischen Support, einschließlich: kundenspezifische technische Zeichnungen, kundenspezifische Kraftbelastungsberichte und kundenspezifische Längenproduktion. Teilen Sie uns einfach unten mit, wir erledigen den OEM-Service für Sie:
Einheitenanordnung oder Layoutzeichnung
Spezifikation von Solarmodulen
Mindesthöhe erforderlich
Neigungswinkel erforderlich
Fundamenttyp
Maximale Windgeschwindigkeit
Maximale Schneelast

Schnelle Lieferung für MW+-Projekte
Die Produktionslinie mit 6 Stahlprofilen sorgt für eine schnelle Produktion.
Automatische Bohrmaschine für schnelles Schneiden und Bohren.
Professional assemble team and package team.

Breites Einsatzspektrum
Geeignet für die Installation aller Solarmodule
Die Installation als Quer- oder Hochformat-Array ist praktikabel.
Mehrreihige Arrays mit 2/3 Paneelen im Hochformat und 2/3/4/5/6 Paneelen im Querformat sind alle praktikabel.
Verarbeitbar für Ebenen, Sümpfe, Sümpfe, Berge
Die Höhe kann zwischen 0 und 2500 mm liegen.
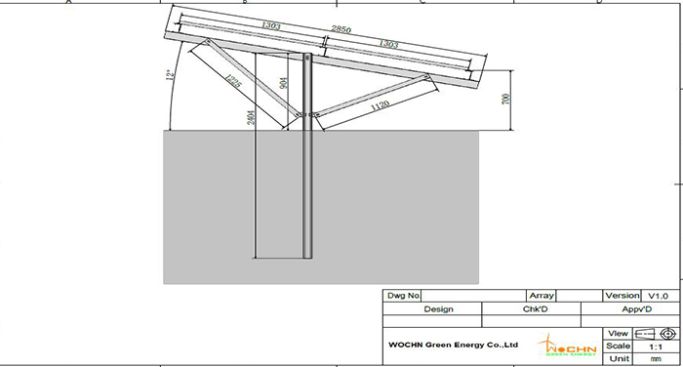
Komponenten

Strahl
Zur Verbindung von Pfahlschenkeln, doppelte Stütze

Säule
Starke Pfahlunterstützung für die Installation mit maschinellem Betrieb

Seitliche Unterstützung
Zur Verbindung von Pfahlschenkeln, doppelte Stütze

Transferset
Zum Anschluss von Seitenstützen, Doppelstützen

Schiene mit C-Profil
Für die Bodensolaranlage

Schienenbefestigungssatz
Einfache Kompatibilität mit dem Schienensystem

Mittelklemme
Für Module mit einer Dicke von 30/40/50 mm
Selbststehend, einfache Installation

Endklemme
Für Module mit einer Dicke von 30/40/50 mm
Selbststehend, einfache Installation
Technische Daten
Produktname | DP Pile Ground Solar-Montagesystem |
Anwendung | Boden |
Neigung | Maßgeschneidert |
| Material | Feuerverzinktes Stahlmaterial oder Zink-Aluminium-Magnesium |
Beende | Feuerverzinkt, durchschnittlich 75 µm |
PV-Modul | Gerahmt oder Ungerahmt |
Modulgröße | Kleine und große Module |
Modulausrichtung | Hoch-format |
Modulrichtung | Beliebige Richtung |
Bemessungswindbelastung | Bis zu 60m/s |
Bemessungsschneelast | Bis zu 1 metre |
Dachhöhe | Bis zu 20 metre |
Designstandard | EN1991, AS1170,UL1703,JIS C 8955:2011,CE,TÜV |
Referenz
Hinterlassen Sie uns eine Nachricht
Wir möchten von Ihnen hören